HLW Türnitz HLW Türnitz HLW Türnitz HLW Türnitz HLW Türnitz HLW Türnitz HLW Türnitz HLW Türnitz HLW Türnitz HLW Türnitz HLW Türnitz HLW Türnitz HLW Türnitz HLW Türnitz HLW Türnitz HLW Türnitz HLW Türnitz HLW Türnitz HLW Türnitz HLW Türnitz

HLW Türnitz

Entwurfsgrundsätze

Die HLW Türnitz wurde um ein Schul- und ein Internatsgebäude erweitert. Im bestehenden Gebäudetrakt wurden funktionelle Verbesserungen durchgeführt.

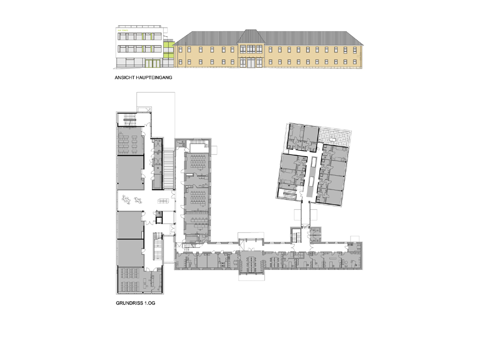
Der neue dreigeschossige Schultrakt ist parallel zur westlichen Seite des Altbestandes situiert. Dadurch kann der neue Speisesaal im Erdgeschoß direkt an die bestehende Betriebsküche angebunden werden.

Eine weiträumige Terrasse bindet den Speisesaal an den Garten an. Mittels eines durchgehenden Luftraumes wird eine Sichtverbindung mit den Erschließungsflächen der Klassenzimmer geschaffen.

Die Auskragung der Obergeschoße schafft einen überdeckten Vorbereich über den das Schulgebäude erschlossen wird. Die Erdgeschoßzone des neuen Klassentraktes ist von den Obergeschoßen formal abgesetzt, wodurch die leichte und schwebende Wirkung des Baukörpers unterstützt wird.

In der neuen Foyerzone ist die Bibliothek attraktiv situiert und kann auch von externen Besuchern benutzt werden. Den Klassen sind in Form von zentralen Gangerweiterungen Flächen für das ‚neue Lernen’ zugeordnet. Diese Bereiche können flexibel für Projektarbeiten genutzt werden.

Der Baukörper des neuen Internatstraktes nimmt die Verschwenkung des historischen, ehemaligen Wirtschaftsgebäudes auf. Mittels eines verglasten Ganges sind die Internatsräume an den Bestand angebunden. Die Doppelzimmer sind in kleinere Gruppen zusammengefasst, die sich windmühlenartig um den zentralen, zweigeschoßigen Erschließungsbereich gruppieren. 

Beim Bestandsgebäude wurden die Fassaden thermisch saniert, neue Fenster vorgesehen, und das Dach neu eingedeckt. Die Wand- Fußboden- und Deckenoberflächen wurden neu hergestellt. Die gesamte gebäudetechnische Infrastruktur wurde ebenfalls erneuert. Der Turnsaaltrakt wurde gemäß den heutigen Anforderungen saniert.

Auf eine mechanische Belüftung der Klassen- und Verwaltungsräumlichkeiten konnte aufgrund eines innovativen Lüftungskonzeptes mit schallgedämmten, tischlermäßigen Lüftungselementen verzichtet werden. Die Tageslichtnutzung wurde mittels natürlicher Belichtungselemente in Form von Oberlichten sowie Raffstores mit Tageslichtlenkung optimiert. Der Niedrigenergiehausstandard gewährleistet eine hohe Nachhaltigkeit ebenso wie die konstruktive Ausbildung, die eine zukünftige Flexibilität der Nutzung erlaubt.

Auftraggeber

BIG Bundesimmobiliengesellschaft
EU-weites Verhandlungsverfahren
1.Preis 2012
Fertigstellung 2018